Auktionsdetails
Auktionsüberblick
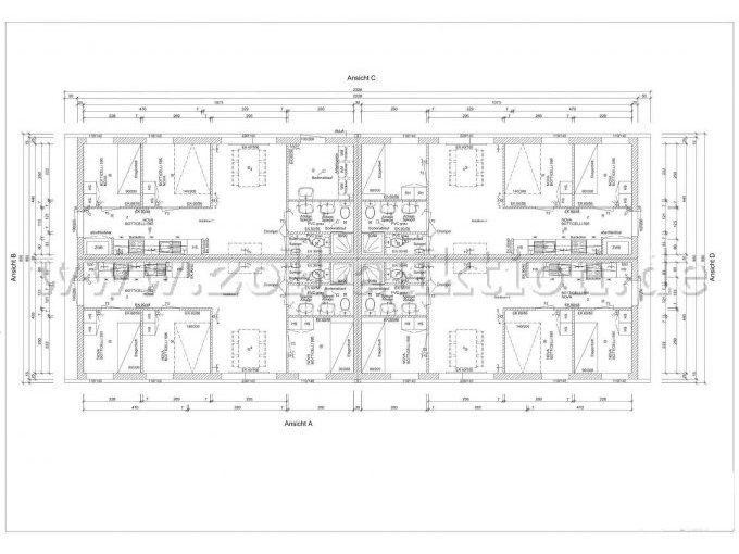
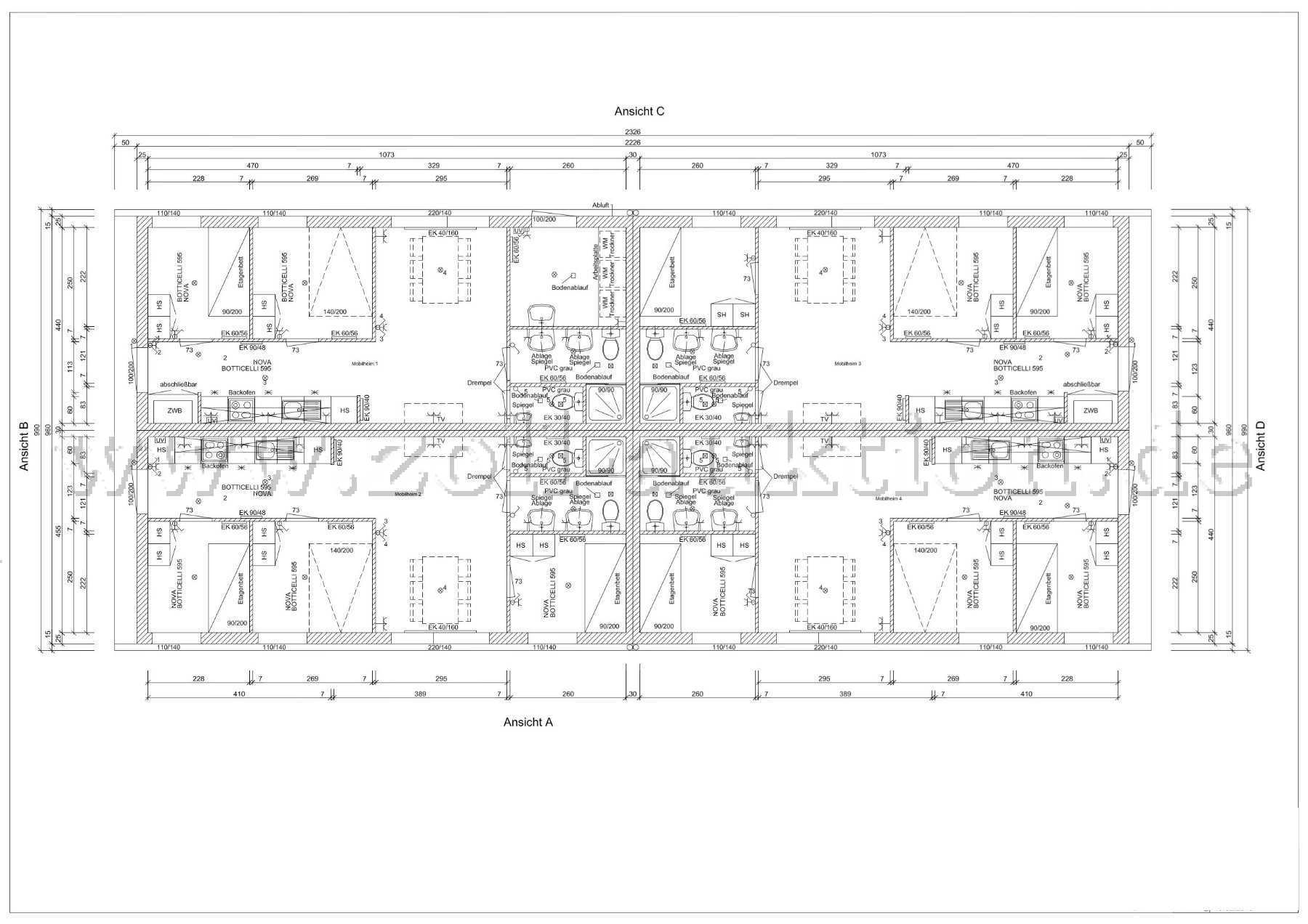
1 Mobilheimkomplex des Herstellers Lacet
- Auktionsende:
- Mi., 18.03.2026 - 09:30 Uhr
- verbleibende Zeit:
- 11 Tage 18 Std. 29 Min.
- Anbieter:
- Stadt Burgdorf (1 weitere Auktion)
- Ort:
- 31303 Burgdorf
- Abholung:
- Ja
- Versand:
- Nein
- Zahlungsart:
- Überweisung
Gegenstandsbeschreibung
Die Stadt Burgdorf bietet einen Teil einer Mobilheimanlage aus dem Baujahr 2016 an, die bis zum Sommer 2024 als Flüchtlingsunterkünfte genutzt wurden und seit dem leer stehen.
Ein Modulheimkomplex bestehet aus je 4 Einheiten in jeweils gleicher Zusammenstellung:
3 Einheiten mit ca. 45 m² aufgeteilt in 3 Schlafzimmer, Wohn-Essbereich mit Küchenzeile, Bad mit Dusche und zusätzlichem Gäste WC
1 Einheit mit ca. 39 m² aufgeteilt in 2 Schlafzimmer, Wohn-Essbereich mit Küchenzeile, Bad mit Dusche und zusätzlichem Gäste WC
1 separat zugänglicher gemeinschaftlicher Wasch- und Trockenraum mit Anschlüssen
Die einzelnen Einheiten sind renovierungsbedürftig, die Elektrogeräte in den Küchenzeilen müssen z. T. ersetzt werden. In manchen Einheiten sind die Heizkörper kaputt und müssen ersetzt werden. Die Innentüren weisen z.T. starke Beschädigungen wie Kratzer, Kleberreste oder Rückstände von "Kindermalerei" auf.
Es wird ausdrücklich empfohlen, dass eine Vorab-Besichtigung vor Ort stattfindet, da jede Einheit unterschiedliche Abnutzungserscheinungen hat! Eine Besichtigung kann telefonisch (auch kurzfristig) vereinbart werden.
Je zwei Einheiten teilen sich eine Gas-Warmwasser-Zentralheizung mit einer Kombitherme der Firma Wolf z.B. CE-0085CO0098
Jede Einheit ist Teilmöbliert mit Schränken, Betten bzw. Etagenbetten. Die Schlafräume verfügen über Außen-Rollläden (Gurtwickler) , welche z. T. ersetzt, bzw. repariert werden müssen. Auch einige Heizkörper sind abgängig.
Die Einheiten könnten unter Beachtung der gemeinsamen Nutzung der Kombitherme und der Außenverkleidung auch separat genutzt bzw. aufgestellt werden.
Ein weiterer Mobilheimkomplex ist in separater Auktion erhältlich.
Die Einheiten sind bereits von den Versorgungsleitungen getrennt und sofort abholbereit. Der Modulheimkomplex kann in vier Einheiten geteilt und transportiert werden.
Die Einheiten haben z.B. folgende Chassis-Nummern: LN 705 180516, LN 701 070416, LN 702 080416, CCC 704 0516, CCC 710 0516
Abbau und Transport, inkl. der Einholung von evtl. Genehmigungen, erfolgt in Eigenleistung auf Kosten des Bieters und ist KEIN Bestandteil dieser Auktion!
Versteigert wird wie besichtigt. Der Abtransport muss kurzfristig erfolgen.
Besichtigung, Abholung, Versand, Zahlung
- Straße:
- Vor dem Celler Tor 1
- PLZ / Ort:
- 31303 Burgdorf
- Bundesland:
- Niedersachsen
- Ansprechpartner:
- Kim Strauch
Telefon: 05136-898285
E-Mail: k.strauch@burgdorf.de - Abholung:
- Ja
- Versand:
- Nein
- Zahlungsmethoden:
- Überweisung
- USt ausgewiesen:
- Nein
- Auktion startete:
- Mi., 04.03.2026 - 09:30 Uhr
- Auktion endet:
- Mi., 18.03.2026 - 09:30 Uhr
Rechtliche Informationen
- Auktionsart:
- Privatrechtliche Auktion
- Verbraucherhinweis:
- Der Anbieter der Auktion handelt als Unternehmer i.S.d. § 14 BGB. Es gelten die Bestimmungen für öffentliche Versteigerungen.
- Umsatzsteuerhinweis:
- Die Auktion unterliegt nicht der Umsatzsteuer. Eine Rechnung wird nicht ausgestellt. Als Zahlungsnachweis gilt der Bankauszug.
- Ausschluss Gewährleistung:
- Die Versteigerung erfolgt unter Ausschluss der Gewährleistung (Sachmängelhaftung). Ein Widerrufs-
/Rückgaberecht besteht nicht.
(§ 4 Versteigerungsbedingungen bzw. Hilfebereich>Rechtliches).










