Auktionsdetails
Auktionsüberblick
1 Containeranlage bestehend aus 5 Containern mit Duschanlage und 2 Toiletten
- Auktionsende:
- Mi., 22.04.2026 - 10:00 Uhr
- verbleibende Zeit:
- 17 Tage 0 Std. 17 Min.
- Anbieter:
- Abfallwirtschaft Lahn-Fulda
- Ort:
- 35041 Marburg
- Abholung:
- Ja
- Versand:
- Nein
- Zahlungsart:
- Überweisung
Gegenstandsbeschreibung
Bestehend aus 5 gekoppelten einzelnen Containern
Baujahr 1997:
2 Container mit den Außenmaßen (L x B x H): 6,05 m x 2,44 m x 2,92 m
1 Container mit den Außenmaßen (L x B x H): 4,00 m x 2,44 m x 2,92 m
Baujahr 2013:
2 Container mit den Außenmaßen (L x B x H): 6,05 m x 2,44 m x 2,92 m
Gesamte umbaute Fläche ca. 76,5 m²
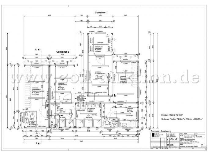
Die in 1997 errichtete Containeranlage, bestehend aus 3 Einzelcontainern mit 3 Duschen, Umkleidebereichen, 4 Waschbecken und 2 Toiletten (davon eine Kundentoilette mit separatem Eingang), wurde als Schwarz-Weiß-Bereich auf unserer Entsorgungsanlage genutzt. In 2013 wurde die Containeranlage um 2 Container erweitert, dadurch erhöhte sich die Anzahl der Duschen von 3 auf 5. Ein Grundriss, 2 Bilder der Anlage aus der Draufsicht sowie ein Plan mit der Darstellung der Bauabschnitte/Nutzungsbereiche sind in den Bildern (1-4) dieser Auktion zu finden.
Die Warmwasseraufbereitung erfolgte durch eine Gastherme, die vor der Stilllegung Mitte 2025 noch auf Abgaswerte geprüft wurde (siehe Bild 13 u. 14). Die Container wurden durch Elektro-Radiatoren geheizt, die Geräte haben eine CE-Kennzeichnung und waren Teil des jährlichen E-Checks. Bis zur Stilllegung der Containeranlage waren die Gastherme und das Heizungssystem noch funktionsfähig, jedoch ist in der Zwischenzeit davon auszugehen, dass nicht mehr alle Elemente betriebsbereit sind.
Die Innenbereiche der Container sind nutzbar. Jedoch weisen die sanitären Anlagen altersbedingt durch die jahrelange intensive Nutzung Verunreinigung durch Kalk und Schmutz auf und es sind deutliche Lackschäden im Bereich der Duschen erkennbar. Die Kunststoffelemente sind stark vergilbt und die Gummidichtungen spröde. Der Bodenbelag weist an vielen Stellen Flecken auf, die durch eine normale Reinigung nicht mehr zu entfernen sind. Je nach geplanter Nutzung ist eine Generalüberholung erforderlich.
Die Außenhülle der Container ist intakt, Wassereintritte sind nicht erkennbar.
Die Oberlichter können geöffnet werden, die angebrachten Gitter dienen dem Schutz vor Einbruch.
Die Anlage wurde nach Außerbetriebnahme abgebaut und alle Öffnungen sind mit Planen verschlossen. Die Verbindungselemente und die Klemmschrauben sind vorhanden. An den Kantenbereichen der Container sind Roststellen zu erkennen (siehe Bild 20)
Die Anlage wird spannungsfrei übergeben.
Eine Besichtigung vor Gebotsabgabe ist dringend erforderlich!!!
Kein Versand möglich, nur Abholung und Selbstabbau.
Der Standort ist mit einem LKW erreichbar. Abholung innerhalb von 4 Wochen nach Auktionsende.
Besichtigung, Abholung, Versand, Zahlung
- Straße:
- Siemensstr. 5
- PLZ / Ort:
- 35041 Marburg
- Bundesland:
- Hessen
- Ansprechpartner:
- Lars Ostrowski
Telefon: 06421 94899-26
E-Mail: OstrowskiL@a-lf.de - Abholung:
- Ja
- Versand:
- Nein
- Zahlungsmethoden:
- Überweisung
- USt ausgewiesen:
- Nein
- Auktion startete:
- Fr., 27.03.2026 - 10:00 Uhr
- Auktion endet:
- Mi., 22.04.2026 - 10:00 Uhr
Rechtliche Informationen
- Auktionsart:
- Privatrechtliche Auktion
- Verbraucherhinweis:
- Der Anbieter der Auktion handelt als Unternehmer i.S.d. § 14 BGB. Es gelten die Bestimmungen für öffentliche Versteigerungen.
- Umsatzsteuerhinweis:
- Die Auktion unterliegt nicht der Umsatzsteuer. Eine Rechnung wird nicht ausgestellt. Als Zahlungsnachweis gilt der Bankauszug.
- Ausschluss Gewährleistung:
- Die Versteigerung erfolgt unter Ausschluss der Gewährleistung (Sachmängelhaftung). Ein Widerrufs-
/Rückgaberecht besteht nicht.
(§ 4 Versteigerungsbedingungen bzw. Hilfebereich>Rechtliches).




















